Zamiast 200 miejsc będzie tylko 90 miejsc, wiaty na skarpie zostaną rozebrane, zostanie zlikwidowane boisko. Czy to dobre dla mieszkańców?
Solec nad Wisłą, malownicze miasto o królewskim rodowodzie, stanął w obliczu inwestycyjnego skandalu. Projekt sceny plenerowej, który miał stać się kulturalnym sercem Powiśla, przeszedł radykalną metamorfozę. Zamiast obiecanego amfiteatru na kilkaset osób, powstaje budynek z salą konferencyjną i niewielkim tarasem. Mieszkańcy i autorzy pierwotnej koncepcji pytają: dlaczego nikt nie zapytał nas o zdanie?
Marzenie o „perle Powiśla”
Historia projektu sięga 2018 roku, kiedy to budowa nowoczesnej sceny plenerowej była jedną z kluczowych obietnic wyborczych poprzedniej administracji. Koncepcja nie powstała za zamkniętymi drzwiami – w jej tworzenie zaangażowano szerokie spektrum społeczności: od kół gospodyń wiejskich (KGW) i strażaków z OSP, po lokalne stowarzyszenia i sołtysów.
Pierwotny projekt zakładał powstanie kompleksu, w skład którego wchodziły:
-
Prawdziwy amfiteatr: z widownią zdolną pomieścić kilkaset osób.
-
Tematyczny plac zabaw: nawiązujący do flisackich tradycji Wisły i historii Solca jako miasta królewskiego.
-
Taras widokowy: eksponujący panoramę doliny Wisły.
Inicjatywa zyskała uznanie nie tylko mieszkańców, ale i Urzędu Marszałkowskiego, który przyznał na ten cel dofinansowanie w wysokości 2,1 mln zł.
Nowa władza, nowa wizja – bez konsultacji?
Wraz ze zmianą w fotelu burmistrza, zmieniła się również koncepcja zagospodarowania terenu nad Wisłą. Jak alarmuje Marek Szymczyk, były burmistrz i inicjator projektu, obecna administracja całkowicie odeszła od wizji otwartego amfiteatru.
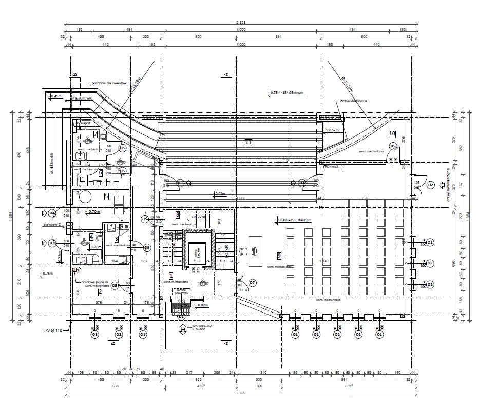
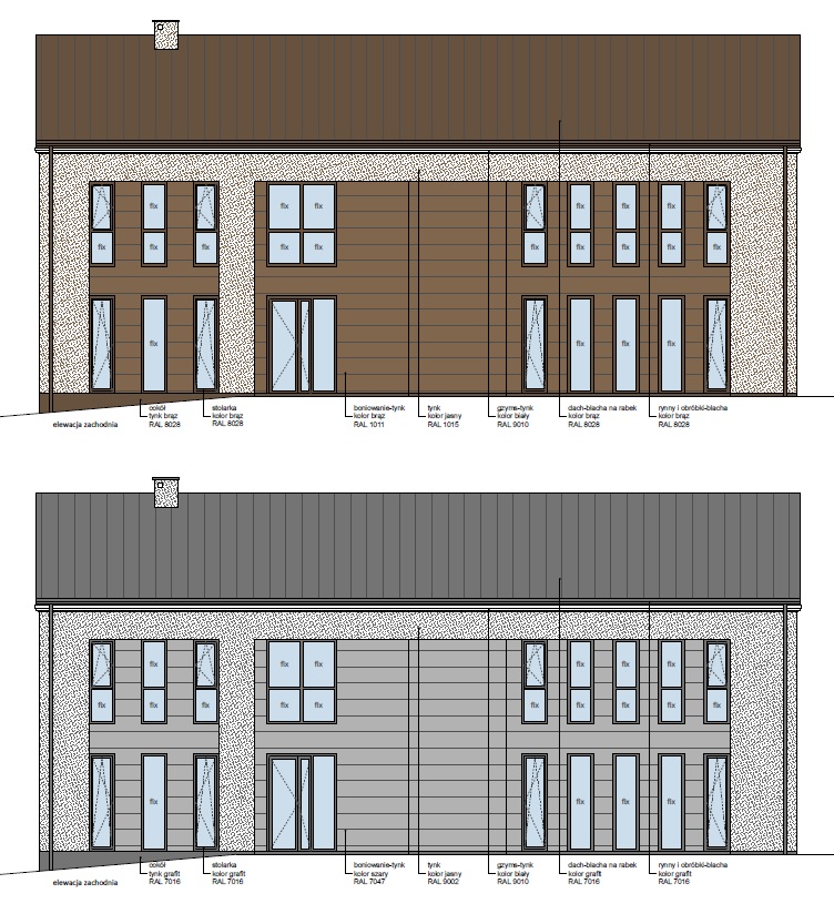
Zamiast tętniącej życiem sceny plenerowej, w Solcu wyrasta budynek z salą konferencyjną. Krytycy inwestycji wyliczają, że to już czwarty tego typu obiekt w mieście – po salach w Gminnym Ośrodku Kultury, Urzędzie Miasta i Remizie. Co najbardziej uderzające, nowa widownia zewnętrzna ma pomieścić zaledwie 90 osób, co drastycznie ogranicza możliwości organizacji większych imprez kulturalnych czy koncertów.
Finanse i brak dialogu
Kontrowersje budzi nie tylko sam kształt inwestycji, ale sposób wprowadzania zmian. Według doniesień, nowa koncepcja nie była konsultowana z:
-
Mieszkańcami i organizacjami społecznymi.
-
Radnymi Miejskimi (którzy twierdzą, że nie widzieli zmienionego projektu).
-
Zespołem, który pozyskał środki zewnętrzne.
Zmiana planów w trakcie realizacji to nie tylko straty wizerunkowe, ale i realne koszty. Szacuje się, że samo przeprojektowanie pochłonęło dodatkowe 30 000 zł z budżetu gminy, a utrzymanie nowego budynku będzie generować koszty rzędu kilkudziesięciu tysięcy złotych rocznie.
Co dalej z turystycznym potencjałem Solca?
Solec nad Wisłą, położony na trasie Małopolskiego Przełomu Wisły, ma ogromny potencjał turystyczny. Amfiteatr z prawdziwego zdarzenia mógł stać się „kołem zamachowym” dla lokalnej turystyki, przyciągając gości na festiwale, występy folklorystyczne i widowiska historyczne.
Obecnie nad inwestycją wisi znak zapytania. Czy „budynek z tarasikiem” spełni oczekiwania mieszkańców, czy okaże się kosztownym pomnikiem niewykorzystanej szansy? Jedno jest pewne – brak dialogu społecznego przy tak kluczowej inwestycji pozostawił głęboki niesmak i poczucie zignorowania głosu tych, dla których ta scena miała powstać.
Podsumowanie kosztów i zmian:
-
Dofinansowanie: 2 100 000 zł (środki zewnętrzne).
-
Dodatkowy koszt projektu: ok. 30 000 zł.
-
Pojemność widowni: Spadek z kilkuset do zaledwie 90 miejsc.
-
Główna zmiana: Amfiteatr plenerowy zamieniony na zamknięty budynek konferencyjny.





Niektóre osoby w Solcu ewidentnie ze wszystkim mają problem. Nic im nie pasuje i zawsze i we wszystkim są na NIE. Nie rozumiem czemu to ma służyć lub raczej komu nie służyć? Polecam wybrać się do Czarnowłosy. Tam jest niewielki amfiteatr, a kiedy brakuje miejsc, można rozłożyć sobie leżącej, które są dostępne. Klimacie rewelacyjny. Ale jak to Dołączali nikt nigdy nie dogodzi 😐
Do Czarnolasu ( słownik zmienił)
Wizualnie dla mnie to stodoła, czy potrzebna? A może przerost formy nad treścią?
To zależy jak się na to patrzy dla niektórych zmiana z ładnego amfiteatru na ochydną stodołę a inni cieszą się że ta budowla nie została zabrana nam z Solca do Sadkowic 😃